My wishlist Property Application Form Report Maintenance Make a payment

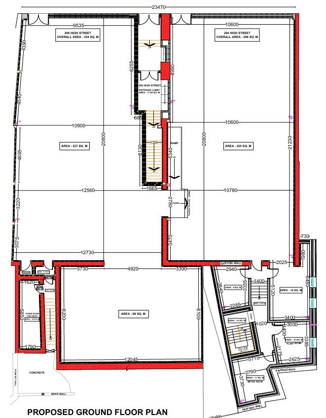
290-294 High Street

Price

From £ pcm

Availability

2026

Council Tax Band Pending

Make an enquiry

Get instant updates on similar properties

Key Features

  • Undergoing complete refurbishment to a high standard
  • Planning granted for use classes A1, A2, A3 and/or B1
  • Total floor space - 650 sq m / 6,996 sq foot
  • Flexible layout options
  • Prominent High Street location
  • Available to let from spring/summer '26

Summary

A unique opportunity to secure a substantial and highly flexible retail space in the heart of Bangor High Street, available from spring/summer 2026. Currently undergoing a full refurbishment to a high standard. This prominent property offers a total floor area of approximately 650 sq metres / 6996 sq foot, with the added benefit of versatile leasing options to suit a range of occupier needs. An occupiers’ specific requirements could be incorporated into the scheme if on board at an early stage

The building spans both sides of the street-facing premises and can be let in its entirety or as two separate units:

Full Building: Approx. 650 sq m / 6996 sq f

Side A: Approx. 354 sq m / 3810 sq f

Side B: Approx. 298 sq m / 3207 sq f

This layout provides excellent flexibility for a wide range of retail, showroom, or service-based businesses, with planning granted for classes A1,A2,A3 or B1. With a commanding presence in a prime high street location and high footfall, the space offers ample potential for occupiers to tailor the premises to their exact requirements.

Early expressions of interest are encouraged, with availability commencing in 2026.

Property photo
Property photo
Property photo
Property photo
Property photo
1/6
2/6
3/6
4/6
5/6
6/6

How to secure a room:

  1. Watch the Video Tour for the property you like
  2. Attend a Virtual Viewing; use the contact us section and give us details of the property you wish to view.
  3. Submit a Tenant Detail Form, with UK Guarantor details.
  4. You will need to pay a security deposit.
  5. Finally, you must sign a legally binding tenancy agreement.

Floor plan of property

Why Varcity?

  • We provide luxury private accommodation
  • The Varcity team are available 24/7
  • We offer an exclusive discount card
  • Our team is always happy to help!